| Price | €359,000 |
| Type of residence | Apartment, flat with shared staircase, apartment |
| Liveable area | 85.9 m² |
| Acceptance | Immediately |
| Status | Sold |
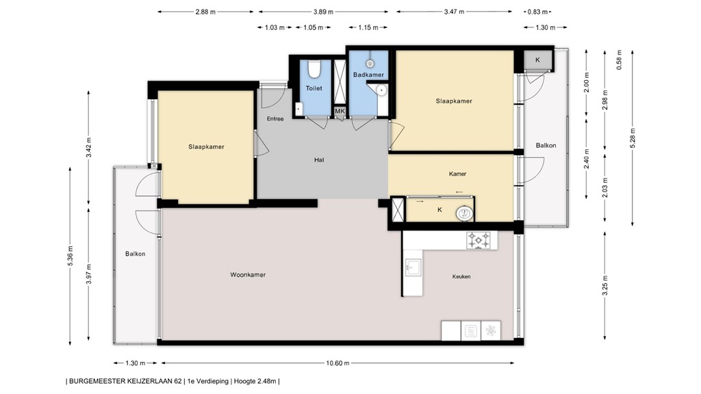
Completely renovated, spacious, ground-floor 3/4-room apartment of approximately 86 m² on the first floor with an elevator, storage room, and parking on private, enclosed grounds. This apartment has been completely renovated and redesigned, and you can move in without any major renovations. The kitchen has been relocated, creating a spacious living room with an open-plan kitchen/diner. What was once the kitchen is now a study/home office, with large built-in wardrobes housing a washer/dryer, boiler, and ample storage space. The apartment also features a modern bathroom with a shower and toilet, and two spacious bedrooms. The apartment has a spacious balcony at both the front and rear, and a large storage room in the basement. This beautiful apartment is accessible from both the main entrance and the parking lot, all on one level. The location is excellent, quiet and green yet very central. The surrounding area offers a high level of amenities: within walking distance are the Mall of the Netherlands, local shops, Antoniushove Medical Center, as well as a bus and tram stop. Several primary and secondary schools, the De Fluit swimming pool, sports clubs, and the library are also located nearby. The nearby Sytwendetunnel provides excellent access to the N44, A4, A12, and A13 highways. Layout: Secure entrance with a doorbell panel at the front or from the enclosed parking area at the rear, elevator or stairs to the first floor. Apartment entrance, spacious central hall with meter cupboard, toilet with hand basin, modern bathroom with shower and vanity. Bedroom at the front with access to the front balcony and spacious master bedroom at the rear with a door to the rear balcony. What was once the kitchen is now an open-plan study/home office with large built-in cupboards housing the boiler and washer/dryer. Spacious and bright living room with a cozy sitting area at the front and access to the front balcony. At the rear is the luxurious open-plan kitchen/diner with a corner layout and ample countertops, all necessary built-in appliances, and a beautiful view. A large private storage unit in the basement is also accessible from the parking area. Details: - Completely renovated and modernized a few years ago. - Freehold land - Energy label C valid until February 17, 2036 - Fiber optic internet access - Parking on the property at the rear - 8/503rd share in the active homeowners' association (VVE) contribution: approximately €230 per month (€244 from April) - Hot water via a private boiler and heating via a block heating system. Advance payment for heating costs: approximately €60 per month (€72 from April) - Delivery by arrangement, available immediately - To download the relevant documents, terms and conditions, clauses, model purchase agreement, and submit an offer, you will receive an email with the appointment confirmation and a link to the Eerlijk Bieden (Fair Bidding)/data room environment on our website.
| Reference number | 94 |
| Asking price | €359,000 |
| Service costs | €230 |
| Heating | €60 |
| Status | Sold |
| Acceptance | Immediately |
| Offered since | 23 March 2026 |
| Last updated | 14 April 2026 |
| Type of residence | Apartment, flat with shared staircase, apartment |
| Floor | 1st floor |
| Type of construction | Existing estate |
| Accessibility | People with disabilities Seniors |
| Construction period | 1966 |
| Roof materials | Bitumen |
| Rooftype | Flat |
| Isolations | Floor Insulated glazing |
| Floor Surface | 85.9 m² |
| Content | 267 m³ |
| Surface area other inner rooms | 0.5 m² |
| External surface area storage rooms | 6.8 m² |
| External surface area | 12.9 m² |
| Number of floors | 1 |
| Number of rooms | 4 (of which 2 bedrooms) |
| Number of bathrooms | 1 (and 1 separate toilet) |
| Location | City centre Near highway Near park Near public transport Near school Near shopping center On a quiet street Residential area |
| Energy certificate | C |
| Number of parking spaces | 1 |
| Water heating | Electric boiler |
| Heating | Collective heating |
| Ventilation method | Balnced ventilation Mechanical ventilation |
| Bathroom facilities | Shower Sink |
| Parking | Parking lot |
| Has a balcony | Yes |
| Has cable TV | Yes |
| Has an elevator | Yes |
| Has fibre optical cable | Yes |
| Has a phone line | Yes |
| Has an internet connection | Yes |
| Has a storage room | Yes |
| Has ventilation | Yes |
| Registered at Chamber of Commerce | Yes |
| Annual meeting | Yes |
| Periodic contribution | Yes |
| Reserve fund | Yes |
| Long term maintenance plan | Yes |
| Maintenance forecast | Yes |
| Home insurance | Yes |
| Cadastral designation | Veur B 6334 |
| Range | Condominium |
| Ownership | Full ownership |
| Index number | 1 |