Description
Spacious and luxuriously renovated duplex apartment featuring a large living room with an open-plan kitchen and a large roof terrace, 4 bedrooms, 2 bathrooms, and 2 toilets.
This beautiful apartment, with energy label A, underwent a major internal renovation in 2024 and is located in the popular Regentessekwartier district.
The location is ideal, with several charming shopping streets nearby, such as Weimarstraat, Fahrenheitstraat, Reinkenstraat, and Frederik Hendriklaan. Several public transport options are also just around the corner, with excellent connections to the city center, Central Station, and Hollands Spoor. The boulevard, dunes, and beaches of Scheveningen and Kijkduin are approximately a 15-minute bike ride away.
The apartment is situated on freehold land. The homeowners' association (VVE) is active and has a long-term maintenance plan (MJOP) and collective home insurance.
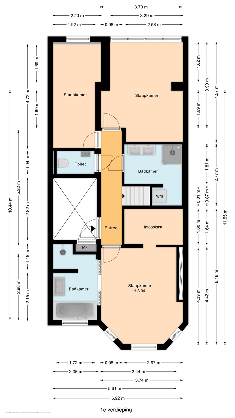
Layout:
Enclosed porch with shared entrance and meter cupboard (12 circuits).
First floor:
Landing with separate toilet equipped with a wall-hung toilet and a small sink. The master bedroom at the front of the apartment boasts plenty of natural light, a large walk-in closet, and an en-suite bathroom with a bathtub, walk-in shower, vanity, and heated towel rail.
At the rear of the apartment are two spacious bedrooms. The luxurious second bathroom, located between the two bedrooms, features a shower, double vanity, and space for a washing machine.
Second floor:
Spacious and exceptionally bright living room with plenty of natural light while maintaining complete privacy. At the front is the fourth bedroom/study. This floor also houses the second toilet with a wall-hung toilet and a small sink.
Adjacent to the dining room at the rear is the large open-plan corner kitchen with all necessary appliances and ample countertop space.
Two doors from the dining room lead to the large, private terrace.
A very well-maintained and neat apartment that has recently been renovated; you can move right in!
Details:
- Freehold land
- Apartment was internally renovated in 2024
- 2 bathrooms and 2 toilets
- 150/280 share in the active homeowners' association (VvE) with a monthly contribution of €210
- VvE with collective buildings insurance, registered with the Chamber of Commerce (KvK), and a multi-year maintenance plan (MJOP)
- The facade was cleaned, repointed, and waterproofed in 2025. - The apartment features uPVC window frames with double glazing
- Energy label A
- Delivery by arrangement, estimated for the end of July
- To download the relevant documents/terms and conditions/sample purchase agreement and submit an offer, you will receive an email with the appointment confirmation and a link to the Eerlijk Bieden/data room environment on our website.