Description
Spacious and bright 4 room TOP- CORNER apartment on the 5th floor with large sunny balcony, private parking space and private storage room. This beautiful corner apartment offers a particularly beautiful view due to its corner location on 3 sides and is also completely on the ground floor, without renovation. The house has already been completely modernized with an open kitchen, bathroom with, among other things, a 2nd toilet and large walk-in shower (wheelchair friendly) and is spacious with 3 bedrooms.
The house is part of the well-maintained apartment complex "Staten II" (built in 2000) and is located in the very popular Statenkwartier. All amenities in the immediate vicinity, the house is within walking distance of public transport and the cozy "Fred" (Frederik Hendriklaan) with numerous shops and restaurants. Also within walking/cycling distance of the harbor, the beach and on the other hand also the center of The Hague.
The house is located on private land and the VVE is active with caretaker, maintenance plan and collective building insurance.
Layout:
Closed entrance with videophone system, elevator to the 5th floor or to the parking basement.
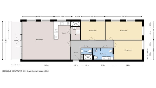
Entrance apartment, hall with meter cupboard, toilet with washbasin. Bright living room with light on 2 sides and a view of the Statenkwartier. From the living room, patio doors to the large balcony or terrace with a beautiful view and afternoon and evening sun.
Semi-open kitchen with countertop in corner arrangement and all necessary equipment, from the kitchen access to the utility room with CV boiler 2017, washing machine / dryer and storage space.
From the hallway access to the spacious modern bathroom with 2nd toilet, washbasin, large walk-in shower, a bidet and underfloor heating. Also from the hallway access to all 3 spacious bedrooms.
In the basement a private storage room and your private parking space.
Details:
- Own land
- Energy label B (fully insulated and own central heating boiler Intergas 2017)
- Protected cityscape
- Contribution to the active VVE total for home/storage/parking space € 269,- per month.
- Painting of frames externally done in April 2025.
- The price includes the parking space.
- Delivery in consultation, can be mid-June
- To download the relevant documents / conditions / clauses / model purchase agreement and to submit a bid, you will receive an email with the appointment confirmation and a link to the Eerlijk Bieden / data room environment on our website.