Description

In a prime location in the popular Zeeheldenkwartier district, this fully renovated and extremely energy-efficient 168 m² A+++ duplex apartment boasts a sunny terrace with exceptional views of the Peace Palace. Enjoy peaceful living, yet still within walking distance of the town center, shops, restaurants, and excellent schools. The property underwent a high-quality renovation in 2017 and will be fitted with 12 solar panels and a heat pump in 2025, resulting in very low energy bills and future-proof living comfort. Fully insulated, excellently maintained, and finished with meticulous attention to detail.

The layout is very practical, featuring a large and bright living room with a luxurious open-plan kitchen featuring an island and sliding doors to the terrace. Four bedrooms and a luxurious bathroom with a bathtub, walk-in shower, bidet, and a second toilet are also included.

The location is very convenient, in the city center with all amenities within walking or cycling distance, and the terrace at the rear offers an absolute oasis of tranquility. The apartment is freehold, and the homeowners' association (VVE) is active.

Layout:
Entrance on the ground floor with a hall offering space for bicycles/strollers, a meter cupboard with a renovated distribution board, and stairs to the mezzanine with a large landing offering ample space for a wardrobe and stairs to the living area.

On the living area, a large and bright landing with a modern, luxuriously finished toilet opens onto the living room through large glass doors. The spacious living room is bathed in natural light thanks to the large windows, features a beautiful gas fireplace, and at the front, a bedroom currently used as an office. The living room has high-quality carpeting.
At the rear is the luxurious open-plan kitchen with an island and all the necessary built-in appliances. From the dining area, sliding doors open onto the 6.50x1.85m terrace with a stunning view of the Peace Palace. Here, you'll hear absolutely nothing of the city surroundings surrounding the property – truly unique!

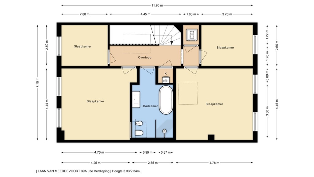
Stairs to the bedroom level, featuring another large landing with abundant natural light through the large skylight. Two bedrooms are located at the front and two at the rear. Two of the bedrooms are master bedroom-sized.

Spacious, luxurious, and bright bathroom with a bathtub, walk-in shower, second toilet, bidet, vanity, and pleasant natural light through the skylight. On the landing, two separate closets house the Vaillant central heating boiler, and the slightly larger closet offers ample storage space and houses the washing machine and dryer.

A second bathroom can easily be created if desired.

Details:
- Energy label A+++ valid until October 3, 2035
- Freehold land
- Vaillant central heating system and heat pump (2025), still under warranty
- The roof is equipped with 24 solar panels, 12 for each member of the Owners' Association, still under warranty
- 41/95th share in an active Owners' Association with a monthly contribution of €152.40. The Owners' Association is professionally managed and there is a collective building insurance policy and a reserve for maintenance.
- Completely renovated in 2017/2018 (including roof) and after 2020, equipped with home automation, a gas fireplace, high-quality carpeting, some new kitchen appliances, and a heat pump
- Delivery upon agreement
- To download the relevant documents / terms and conditions / model purchase agreement and submit an offer, you will receive an email with the appointment confirmation and a link to the Eerlijk Bieden / data room environment on our website.

Features