Description
START VERKOOP MET OPEN HUIS VRIJDAG 27 MAART 10:00-11:00
Spacious ground-floor apartment with a new kitchen, a large bathroom with a bathtub and shower, and a large 7-meter-wide garden with a veranda and shed.
This lovely apartment features, among other things, a bright living room en suite to the dining room with a luxury open kitchen, a modernized bathroom with a bathtub, shower, toilet, and sink, 2 bedrooms, and a large garden. The property is equipped with double glazing and a private central heating combi boiler.
Moerwijk-Noord is known for its spacious layout, wide streets, and plenty of greenery between the residential blocks. Within walking distance, you will find various shops, supermarkets, schools, and healthcare facilities. The beautiful Zuiderpark is also just around the corner – perfect for a walk, sports, or a weekend picnic. In terms of accessibility, this is an excellent location: it is situated around the corner from Moerwijk station, and you can reach the center of The Hague or The Hague Central Station within 15 minutes by tram and bus. The arterial roads towards the A4, A12, and A13 are also easily accessible, making this location ideal for commuters. The property is a 1/24th share of an active Owners' Association (VVE) with a maintenance reserve and collective building insurance.
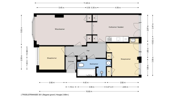
Layout:
Enclosed porch with intercom, entrance to the apartment with a vestibule and spacious hall with meter cupboard and space for a washing machine.
Spacious, bright living room with plenty of natural light, adjoining the dining room with a luxury open kitchen equipped with built-in appliances. From the dining room, you have French doors leading to the large backyard.
Spacious and modernized bathroom with a bathtub, shower, washbasin, and toilet. There is a bedroom at both the front and the rear. The large bedroom at the rear also features doors to the backyard.
The backyard is exceptionally large and 7 meters wide! A canopy has been installed against the rear facade, allowing you to enjoy the garden all year round.
A neat apartment that requires no renovation!
Particulars:
- Energy label D
- Equipped with double glazing.
- Private central heating boiler
- Situated on leasehold land; the right has been (re)issued perpetually by means of an obligatory agreement, effective date 1-1-2011. The AB 1986 Rev. 1993 version 2008 apply.
The land value is € 15,400.00 and the currently applicable ground rent percentage is 3.3% as of 1-1-2026.
The ground rent amounts to € 254.10 per half-year in arrears + € 17.00 management costs.
The next revision of the ground rent percentage (and the ground rent) will take place on 1-1-2031.
- 1/24th share in an active Owners' Association with a monthly contribution of € 101.00
- There is collective building insurance, a maintenance plan, and a substantial reserve for the maintenance of the Owners' Association. - Delivery by mutual agreement, available immediately.
- To download the relevant documents / terms and conditions / model purchase agreement and to submit an offer, you will receive an email with the appointment confirmation and a link to the Fair Bidding / data room environment on our website.