Définition
Ruim, licht en zeer goed onderhouden van oorsprong 4 kamer parterrewoning van 100m2 met 88m2 achtertuin op het Zuiden, 34m2 voortuin en een eigen berging in de onderbouw. Dit fraaie appartement -energielabel C- is geheel en grondig gerenoveerd naar de standaarden en het comfort van deze tijd en geheel voorzien van vloerverwarming en kunststof kozijnen met HR++ beglazing . De indeling is gewijzigd waardoor de woning thans voorziet in een zeer royale woonkamer met luxe open keuken en schuifpuien naar zowel de voor- als de achtertuin; daarnaast een royale slaapkamer met aangrenzend de ruime badkamer voorzien van zowel een bad als een ruime inloopdouche. Alles in de woning is drempelloos en dusdanig ruim van opzet dat het geschikt is voor mindervalide bewoners. Indien gewenst kan er op eenvoudige wijze een tweede slaapkamer worden gerealiseerd.
De ligging is zeer gunstig in het Benoordenhout, erg groen en tegelijk uiterst centraal nabij de Ruychrocklaan en de Van Hoytemastraat; daardoor zijn er tal van winkels, gezellige horeca en openbaar vervoer op loop- of fietsafstand. De Ridderlaan biedt aan twee zijden van de straat parkeergelegenheid en door de ligging aan een brede groenstrook met waterpartij waant u zich in een oase van rust nabij de drukte van de stad.
De woning is gelegen op eigen grond en de VVE is actief met onderhoudsplan, ruime reserve en collectieve opstalverzekering.
Indeling:
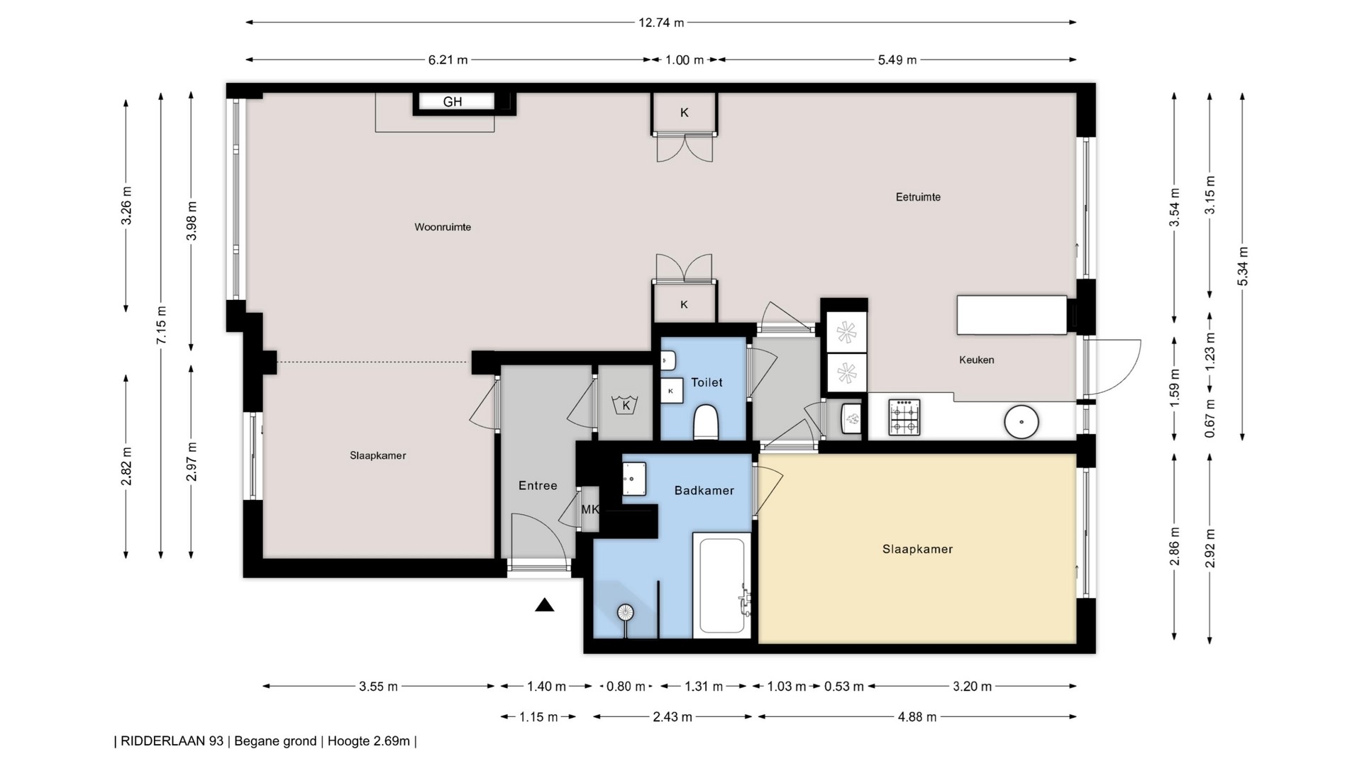
Afgesloten portiek met brievenbussen en bellentableau.
Entree appartement, hal met ruimte voor garderobe, vernieuwde elektra installatie en een vaste kast met opstelplaats wasmachine/droger en unit voor mechanische ventilatie.
Voorzijkamer met schuifpui naar de voortuin. De voorzijkamer is thans betrokken bij de woonkamer en kan eventueel dienen als extra slaapkamer.
Royale woonkamer met zeer veel lichtinval en fraai zicht, aan de voorzijde op het plantsoen en aan de achterzijde op de eigen achtertuin. De woonkamer voorziet in een gezellige gashaard, vaste kasten en aan de achterzijde de ruime eetkamer met aansluitend de ruime open keuken van het merk Miele in hoekopstelling met veel werkblad en diverse Miele inbouwapparatuur. Toegang tot de tuin middels een deur in de keuken of schuifpui vanuit de eetkamer.
Tussenhal met bijzonder ruim toilet met fontein, vaste kast met opstelplaats CV HR ketel 2024 en vanuit deze tussenhal toegang tot de slaapkamer. De slaapkamer voorziet in alle privacy, een schuifpui naar de tuin en aansluitend de badkamer. De badkamer is ruim opgezet met een wastafelmeubel, ligbad en een grote geheel gelijkvloerse inloopdouche.
De royale achtertuin is gelegen op het Zuiden en biedt een groot terras met elektrisch zonnescherm, twee vaste bergkasten, veel groen en privacy.
In de onderbouw een eigen royale fietsenberging.
Bijzonderheden:
• Energielabel C
• Geheel voorzien van vloerverwarming en kunststof kozijnen met HR++
• Zeer grondig verbouwd en gemoderniseerd
• 285/1.635e aandeel in de actieve VVE met een bijdrage van € 150,- per maand. Professioneel beheerd, reservering conform Wet Verbetering Functioneren VVE, collectieve opstalverzekering, onderhoudsplan en een ruime reserve groot onderhoud circa € 22.500,-
• Gelegen op eigen grond
• Voor het downloaden van de relevante documenten / voorwaarden / clausules / model koopakte en het uitbrengen van een bod ontvangt u een mail met de afspraakbevestiging en een link naar de Eerlijk Bieden / dataroom omgeving op onze website.