Vendu: Nassaulaan 16, 2264 CR Leidschendam
Vendu: Nassaulaan 16, 2264 CR Leidschendam
Vendu: Nassaulaan 16, 2264 CR Leidschendam
Vendu F

Nassaulaan 16, 2264 CR Leidschendam

Description Nassaulaan 16

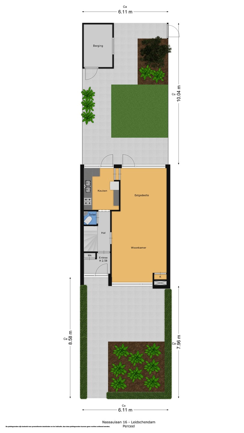
Halfvrijstaand herenhuis met diepe voor- en achtertuin op een perceel van 173 m² eigen grond op een zeer gewilde locatie in het populaire Raadhuiskwartier.

Deze ruime twee-onder-een kap woning met lichte woonkamer, eenvoudige maar nette keuken, 5 slaapkamers (6e mogelijk en eventueel een 2e b...

Caractéristiques

Type de résidence Maison, Manoir, maison jumelée
Période de construction 1958
Statut Vendu
Proposé depuis Lundi 2 mars 2026