Définition

Ruime en energiezuinige tussenwoning met grote woonkamer en luxe open keuken, 4 slaapkamers (5 mogelijk), nieuwe luxe badkamer en zonnige tuin met schuur en achterom. 
Deze instapklare gezinswoning is gelegen in een rustige straat in de kindvriendelijke wijk Essellanden in Wateringen. In de directe nabijheid zijn meerdere speeltuinen te vinden waar de kinderen heerlijk kunnen spelen. Tevens zijn sportverenigingen, basisscholen en ook het openbaar zwembad 'De Waterman' op loopafstand gesitueerd. Openbaar vervoer (oa. tram naar Den Haag) op 5 minuten loopafstand. Rijksweg N211 is circa 5 minuten rijden welke u verbindt met de A4 (richting Rotterdam/Amsterdam) en tevens toegang geeft tot snelwegen A12 (richting Utrecht) en A13 (richting Rotterdam).

Indeling:
Via de keurige voortuin naar de entree. Entree, ruime hal met volop ruimte voor een garderobe, modern toilet met fontein, meterkast en toegang tot woonkamer.
De woonkamer is ruim en voorziet in een vaste kast en openslaande deuren naar de grote achtertuin met schuur voorzien van elektra en een achterom. De ligging van de tuin is ideaal en vooral zonnig … u krijgt de zon in de tuin aan het einde van de ochtend tot het einde van de dag. De tuin biedt veel privacy doordat er geen inkijk is, is afgesloten en daarmee veilig voor de kinderen en is tevens voorzien van water en meerdere stopcontacten.
Aan de voorzijde van de woning de luxe open keuken (2018) met eetbar en opvallend veel werkblad, u kunt hier gerust met meerdere personen tegelijk aan werken. De keuken is voorzien van de benodigde inbouwapparatuur zoals koelkast, vriezer, vaatwasser,  oven met vele functies, ingebouwde kookplaat met afzuigkap met afvoer naar buiten.

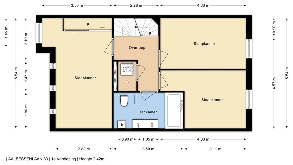
1e verdieping:
Ruime centrale overloop met grote vaste kast met opstelplaats wasmachine/droger en vanuit de overloop toegang tot alle 3 de slaapkamers en de badkamer.
Aan de voorzijde de royale ouderslaapkamer met ingebouwde vaste kasten (2018) en aan de achterzijde de twee ruime slaapkamers ( door de breedte van de woning zijn dit absoluut goed bemeten slaapkamers).  
De tussenliggende badkamer is in 2022 geplaatst en luxe uitgevoerd met een ligbad/douche combinatie, groot wastafelmeubel en een 2e toilet.

2e verdieping:
Grote zolderkamer met dakkapel aan de achterzijde en Veluxraam aan de voorzijde. Het is mogelijk om hier 2 goede slaapkamers te creëren.
Grote berging met opstelplaats CV ketel (in 2019 geplaatst en 26 febr 2026 laatste onderhoudsbeurt gehad) en tevens bergruimte achter de knieschotten en in de kap/vliering. 

De radiatoren zijn voorzien van slimme thermostaatkranen van Honeywell en zowel de eerste verdieping als de dakkapel zijn voorzien van zonwerende elektrische rolluiken. 

Een keurige woning op eigen grond waar u niet groots hoeft te verbouwen en gratis kunt parkeren voor de deur! 

Bijzonderheden:
- Bouwjaar 2001, volledig geïsoleerd 
- Eigen grond
- Energielabel A
- C.V.-combiketel 2019
- Keuken 2018, badkamer 2022, vernieuwde groepenkast 2018
- 4 / 5 slaapkamers 
- Voldoende parkeermogelijkheden 
- Oplevering in overleg, indicatie medio juni
- Voor het downloaden van de relevante documenten / voorwaarden / model koopakte en het uitbrengen van een bod ontvangt u een mail met de afspraakbevestiging en een link naar de Eerlijk Bieden / dataroom omgeving op onze website.

Caractéristiques