| Prijs | € 650.000,- k.k. |
| Type object | Appartement, bovenwoning, dubbelbovenhuis |
| Woonoppervlakte | 117 m² |
| Aanvaarding | In overleg |
| Status | Verkocht |
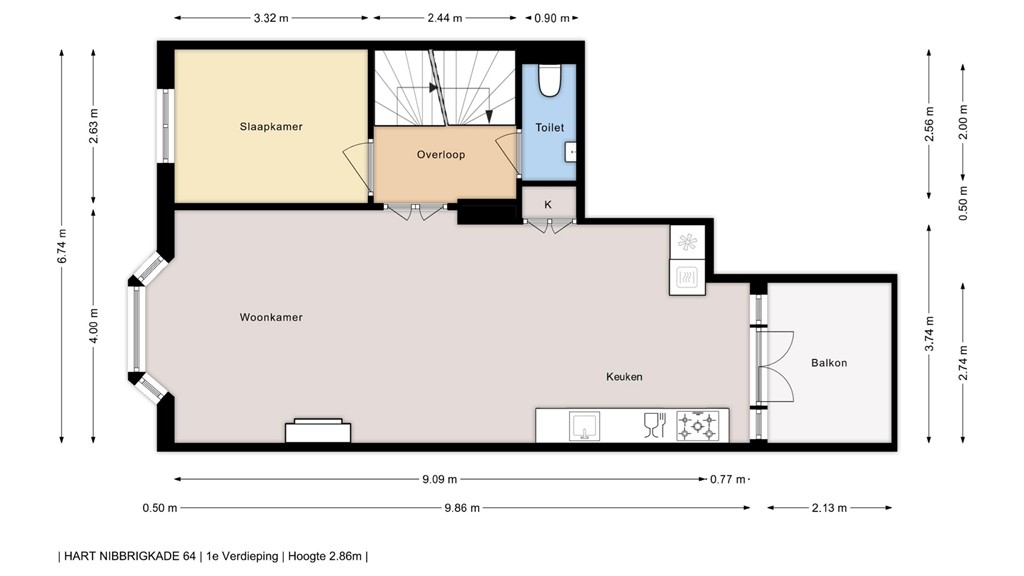
Ruim, licht, geheel gemoderniseerd en zeer goed onderhouden dubbel bovenhuis met woonkamer met open keuken en vergroot balkon, luxe badkamer, 4 slaapkamers, bergvliering en ruimte voor fietsen of kinderwagen op de begane grond. Dit fraaie appartement -energielabel C- is in 2020 intern compleet verbouwd, in 2020 is ook het dak geheel vernieuwd en geïsoleerd en later ook voorzien van zonnepanelen en een groot dakraam dat prettig veel lichtinval biedt. De ligging is zeer gunstig in het Benoordenhout, erg groen en tegelijk uiterst centraal nabij tal van winkels, gezellige horeca en openbaar vervoer op loop- of fietsafstand. De Hart Nibbrigkade biedt aan twee zijden van de straat parkeergelegenheid en door de ligging aan een brede groenstrook met waterpartij waant u zich in een oase van rust nabij de drukte van de stad. De woning is gelegen op eigen grond en de VVE is actief met onderhoudsplan, reserve en collectieve opstalverzekering. Indeling: Entree op de begane grond met ruime hal en meterkast. Trap naar de 1e verdieping met ruime overloop met veel lichtinval, modern toilet met fontein en aan de voorzijde de eerste slaapkamer thans in gebruik als werkkamer. Dubbele deur naar de royale woonkamer met erker en fraai zicht op waterpartij. Aan de achterzijde de grote open woonkeuken met alle benodigde apparatuur en aansluitend middels openslaande deuren naar het vergrote balkon van 2,74*2,13 op het Zuid-Westen. 2e verdieping: Ruime en lichte overloop met dakraam, vaste kast met opstelplaats wasmachine/droger en vanuit de overloop toegang tot alle drie de slaapkamers en de badkamer. Aan de voorzijde de masterbedroom met indrukwekkende plafondhoogte en mooie afwerking met de balken in het zicht, vanuit de masterbedroom komt u ook op de bergvliering met praktische veel bergruimte. Eveneens aan de voorzijde de tweede slaapkamer en aan de achterzijde de derde slaapkamer met toegang tot het tweede balkon. Dit kozijn is onlangs geheel vernieuwd met HR++ beglazing en openslaande deuren. De tussengelegen badkamer is zeer fraai afgewerkt en voorzien van ligbad, grote douche, 2e toilet, wastafelmeubel en prettig veel daglicht door het extra dakraam. Bijzonderheden: • Energielabel C en zeer energiezuinig mede door de zonnepanelen. • Complete renovatie intern in 2020, eveneens een nieuwe dakbedekking met isolatie en later in 2024 voorzien van 14 zonnepanelen, 7 voor de benedenburen en 7 voor deze woning. • CV Nefit Proline 2019 • 1/2e aandeel in de actieve VVE met een bijdrage van € 120,- per maand. Collectieve opstalverzekering, onderhoudsplan en een reserve. • Gelegen op eigen grond. • Oplevering in overleg, indicatie is begin december dus u kunt hier kerst vieren. • Voor het downloaden van de relevante documenten / voorwaarden / clausules / model koopakte en het uitbrengen van een bod ontvangt u een mail met de afspraakbevestiging en een link naar de Eerlijk Bieden / dataroom omgeving op onze website.
| Referentienummer | 79 |
| Vraagprijs | € 650.000,- k.k. |
| Servicekosten | € 120,- |
| Status | Verkocht |
| Aanvaarding | In overleg |
| Aangeboden sinds | Zondag 21 september 2025 |
| Laatste wijziging | Maandag 27 oktober 2025 |
| Type object | Appartement, bovenwoning, dubbelbovenhuis |
| Woonlaag | 1e woonlaag |
| Soort bouw | Bestaande bouw |
| Bouwperiode | 1934 |
| Type dak | Zadeldak |
| Isolatievormen | Dakisolatie Dubbel glas HR-glas |
| Woonoppervlakte | 117 m² |
| Inhoud | 500 m³ |
| Oppervlakte overige inpandige ruimten | 1 m² |
| Oppervlakte gebouwgebonden buitenruimte | 8,4 m² |
| Aantal bouwlagen | 3 |
| Aantal kamers | 6 (waarvan 4 slaapkamers) |
| Aantal badkamers | 1 (en 1 apart toilet) |
| Ligging | Aan rustige weg Dichtbij openbaar vervoer In bosrijke omgeving In centrum In woonwijk Nabij school Nabij snelweg Vrij uitzicht |
| Energielabel | C |
| CV ketel | Nefit Proline |
| Warmtebron | Gas |
| Bouwjaar | 2019 |
| Combiketel | Ja |
| Eigendom | Eigendom |
| Warm water | CV-ketel |
| Verwarmingssysteem | Centrale verwarming |
| Ventilatie methode | Mechanische ventilatie |
| Badkamervoorzieningen | Inloopdouche Ligbad Toilet Wastafelmeubel |
| Heeft een balkon | Ja |
| Heeft kabel-tv | Ja |
| Telefoonaansluiting aanwezig | Ja |
| Beschikt over een internetverbinding | Ja |
| Heeft een dakraam | Ja |
| Heeft zonnepanelen | Ja |
| Heeft ventilatie | Ja |
| Ingeschreven bij de KvK | Ja |
| Jaarlijkse vergadering | Ja |
| Periodieke bijdrage | Ja |
| Reservefonds | Ja |
| Meer jaren onderhoudsplan | Ja |
| Onderhoudsverwachting | Ja |
| Opstal verzekering | Ja |
| Kadastrale aanduiding | Den Haag X 5799 |
| Omvang | Appartementsrecht of complex |
| Eigendomsituatie | Eigen grond |
| Indexnummer | 2 |