Beschrijving

Royaal, licht en energiezuinig 3 kamer appartement met eigen parkeerplaats op afgesloten terrein en berging. 
Dit fraaie en geheel gelijkvloerse appartement op de 2e verdieping (met lift) heeft energielabel A++ en is in 2020 nog voorzien van nieuwe inbouwapparatuur in de keuken. De woonkamer is erg ruim en licht met een open keuken in hoekopstelling, de badkamer is voorzien van zowel een douche als een ligbad en naast de 2 ruime slaapkamers is er ook een ruime serre/inpandig balkon waar je ongeacht het jaargetijde kunt genieten van de zon! Vanuit de woonkamer en de serre  heeft u een fijn uitzicht op de brede laan en de waterpartij. 
De directe omgeving biedt recreatie- en groenvoorzieningen, scholen, winkels en openbaar vervoer. De bereikbaarheid is zeer goed met zowel openbaar vervoer als met de auto, binnen een paar minuten bent u op de A4, A12 en A13. Het Wateringse Veld ligt dichtbij het sfeervolle centrum van Wateringen, op ca. 10-15 autominuten verwijderd van strand, centrum van Den Haag en Delft.
De erfpacht van zowel de woning als de parkeerplaats is eeuwigdurend afgekocht.
De VvE is actief en professioneel beheerd; de maandelijkse bijdrage bedraagt € 215,-.
Er is een meerjarenonderhoudsplan (MJOP), een ruime reserve en een collectieve opstalverzekering aanwezig.

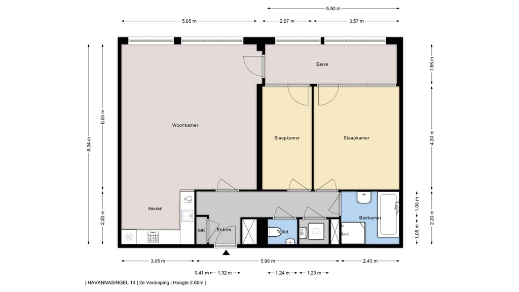
Indeling:
Gelijkvloerse entree op de begane grond via de algemene entree of aan de achterzijde vanuit uw eigen parkeerplaats. 
Lift op trap naar de 2e, via inpandige galerij naar het appartement. Entree, hal met meterkast, modern toilet met fontein en een vaste kast met opstelplaats wasmachine. 
Royale woonkamer met prettig veel lichtinval door de grote raampartijen, ruime open keuken die in 2020 is voorzien van nieuwe inbouwapparatuur. Twee ruime slaapkamers met beiden toegang tot de serre. Ruime badkamer met ligbad, separate douche en wastafel. De serre is bereikbaar vanuit de woonkamer en de slaapkamers, deze ruimte wordt veelal gebruikt als inpandig balkon of als thuiswerkplek.  
In de onderbouw een ruime eigen berging die ook met de lift te bereiken is en aan de achterzijde de eigen parkeerplaats op afgesloten terrein. 

Bijzonderheden
• Bouwjaar 2005, keuken apparatuur 2020
• Volledig geïsoleerd 
• Erfpacht eeuwigdurend afgekocht
• Maandelijkse bijdrage VvE: € 215,-
• VvE professioneel beheerd, met MJOP, ruime reserve en collectieve opstalverzekering
• Energiezuinig: indicatief verbruik elektra en verwarming slechts € 104,- per maand
• Stadsverwarming
• Oplevering in overleg
• Voor het downloaden van de relevante documenten / voorwaarden / model koopakte en het uitbrengen van een bod ontvangt u een mail met de afspraakbevestiging en een link naar de Eerlijk Bieden / dataroom omgeving op onze website.

Kenmerken