Beschrijving

In het populaire Valkenboskwartier gelegen van oorsprong 4 kamer appartement (energielabel C) op de 1e verdieping met balkon. 

Dit leuke en keurige appartement is verbouwd en heringedeeld met een XL woonkamer  (voorheen 2 kamers en-suite), voorslaapkamer, keurige moderne keuken met balkon en de 2e slaapkamer is gecombineerd met de grote badkamer met ligbad en douche waardoor u een suite cq. hotelkamer gevoel krijgt. Eventueel is een 3e slaapkamer te creëren door de woonkamer op te splitsen in 2 kamers.  

De Hendrik van Deventerstraat ligt op loopafstand van winkels en gezellige cafeetjes en restaurants van de Weimarstraat en Fahrenheitstraat, de binnenstad en strand liggen op slechts 10 minuten fiets afstand en er is volop keuze aan openbaar vervoer in de omgeving.

De woning is gelegen op eigen grond en maakt 1/3e deel uit van een kleine en zeer actieve VVE in een zeer goed onderhouden klein complex. Er is bewust voor gekozen om geen MJOP op te stellen omdat er recent veel onderhoud is gepleegd: voorgevel gevoegd, gereinigd en geïmpregneerd, in 2018 nieuwe dakbedekking, in 2025 schilderwerk extern (de boeidelen van het dak en de kozijnen), in 2025 balkonrenovatie. De bijdrage aan de VVE is 50 euro per maand. 

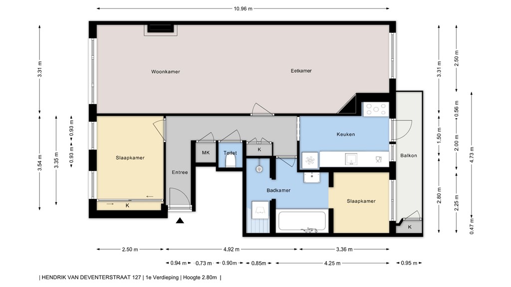
Indeling:
Entree van het appartement op de 1e verdieping, hal en gang met vaste kast met bergruimte en meterkast en toilet. Aan de voorzijde de slaapkamer met grote kastenwand. 
Bijzonder grote en sfeervolle woonkamer, voorheen twee kamers met opvallend veel lichtinval. Middels een kast is hier een stuk van de kamer afgescheiden voor een thuiskantoor maar hier zou ook een extra slaapkamer gecreëerd kunnen worden. 
Aan de achterzijde tevens de moderne keuken met veel kastruimte en werkblad, vanuit de keuken toegang tot het balkon. 
Eveneens aan de achterzijde de royale badkamer met aangrenzende 2e kamer thans in gebruik als kastenruimte. De badkamer is voorzien van een ligbad, douche,  wastafelmeubel en aansluiting voor de wasmachine. De ruimte die nu in gebruik is als garderobe is voldoende groot om er een slaapkamer van te maken. 

Bijzonderheden: 
•	Eigen grond
•	Geheel voorzien van dubbel glas in houten kozijnen. 
•	De V.V.E. is actief en beschikt bewust niet over een Meerjarenonderhoudsplan omdat er veel onderhoud is gepleegd: voorgevel gevoegd, gereinigd en geïmpregneerd, in 2018 nieuwe dakbedekking, in 2025 schilderwerk extern (de boeidelen van het dak en de kozijnen), in 2025 balkonrenovatie.
•	De VVE is ingeschreven in de KVK, er is een bankrekening met thans beperkte reserve (in 2025 is ca € 10.000 besteed aan onderhoud). 
•	Bijdrage aan de VVE is € 50,- per maand
•	Oplevering in overleg, kan in mei.
•	Voor het downloaden van de relevante documenten / voorwaarden / model koopakte en het uitbrengen van een bod ontvangt u een mail met de afspraakbevestiging en een link naar de Eerlijk Bieden / dataroom omgeving op onze website.

Kenmerken