Beschrijving

Royaal TOP appartement op zeer gewilde locatie in de populaire woonwijk Bezuidenhout.
Dit leuke appartement is onder andere voorzien van een lichte woonkamer, moderne keuken met inbouwapparatuur, 3 slaapkamers, moderne badkamer met ligbad en een balkon. De woning is een aantal jaren geleden flink gemoderniseerd: de groepenkast is vernieuwd, in 2017 de CV Remeha geplaatst, in 2019 de keuken, de badkamer en het toilet inclusief standleiding, in 2020 is airconditioning geplaatst in de woonkamer en in 2021 is de dakbedekking vernieuwd. De woning is geheel voorzien van dubbel glas, grotendeels in kunststof kozijnen. 
In de directe omgeving worden veel van dit type appartementen voorzien van een dakopbouw of een dakterras, hiervoor is nog geen vergunning of toestemming aan de VVE aangevraagd (bekijk hiervoor de regels in het bestemmingsplan / omgevingsloket).  

De ligging is bijzonder gunstig in het midden van de wijk, u loopt binnen enkele minuten naar Station Laan van NOI en diverse tram- en bushalten! Tevens woont u om de hoek van de Theresiastraat met tal van winkels, openbaar vervoer en gezellige horeca. Op de fiets bent u in minder dan 10 minuten op Den Haag Centraal en met de auto kunt u kiezen of u de A12 oprijdt naar Prins Clausplein of naar de N44 / A44 richting Leiden en Amsterdam.
Doordat het de bovenste verdieping is heeft u geen bovenburen en prettig veel daglicht en vrij uitzicht. De woning is gelegen op eigen grond en de VVE is actief met voldoende onderhoudsreserve en een collectieve opstalverzekering.

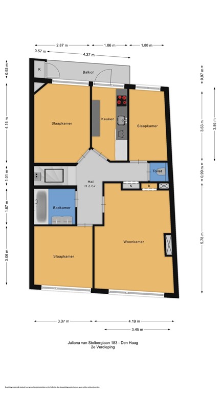
Indeling:
Open portiek met trap naar de eerste verdieping; entree van het appartement met ruime hal met bergruimte en meterkast.

Trap naar de tweede (top) verdieping:
Overloop met veel daglicht door het dakraam, toegang tot alle ruimten en een handig uitklapbaar bordes naar kasten boven de trap met bergruimte en opstelplaats CV 2017.
Ruime lichte woonkamer met prettig veel lichtinval en airconditioning uit 2020, deze kan koelen en verwarmen. Aan de voorzijde tevens de voorzijslaapkamer, deze was in het verleden in gebruik als eetkamer dus indien u dit wenst is deze tussenmuur gemakkelijk weer weg te breken om een extra grote woonkamer over de breedte te creëren. Aan de achterzijde twee ruime slaapkamers en de moderne keuken uit 2019 met inbouwapparatuur waaronder een vaatwasser, koelkast, kookplaat, combioven en een ingebouwde was/droog combinatie. Op de overloop een separaat toilet en de ruime badkamer met dubbel wastafelmeubel en een ligbad. 

Een net appartement waar u niet hoeft te verbouwen!

Bijzonderheden:
- Energielabel D
- Grotendeels kunststof kozijnen met dubbel glas.	
- CV ketel 2017, toilet + keuken +badkamer 2019, airco 2020 en dakbedekking 2021
- Eigen grond
- 1/3e aandeel in actieve vereniging van eigenaren met een maandelijkse bijdrage van € 125,- 
- Er is collectieve opstalverzekering en ruim € 11.000,- reserve voor onderhoud van de VVE.  
- Oplevering in overleg, kan snel.
- Voor het downloaden van de relevante documenten / voorwaarden / model koopakte en het uitbrengen van een bod ontvangt u een mail met de afspraakbevestiging en een link naar de Eerlijk Bieden / dataroom omgeving op onze website.

Kenmerken