Beschrijving

START VERKOOP MET OPEN HUIS VRIJDAG 27 MAART 10:00-11:00

Ruime benedenwoning met nieuwe keuken, grote badkamer met ligbad en douche en een grote tuin van 7 meter breed met veranda en schuur. 

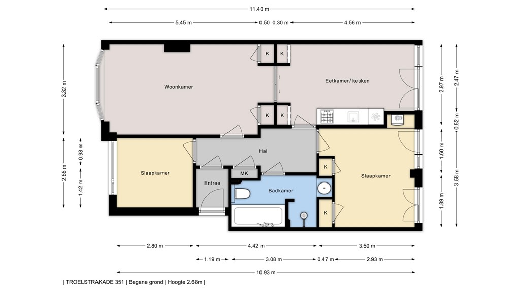
Dit leuke appartement is onder andere voorzien van een lichte woonkamer en-suite naar de eetkamer met luxe open keuken, gemoderniseerde badkamer met ligbad, douche, toilet en wastafel, 2 slaapkamers en een grote tuin. De woning is voorzien van dubbel glas en een eigen CV combiketel.  
Moerwijk-Noord staat bekend om zijn ruime opzet, brede straten en veel groen tussen de woonblokken. Op loopafstand vind je diverse winkels, supermarkten, scholen en gezondheidsvoorzieningen. Ook het prachtige Zuiderpark ligt om de hoek – perfect voor een wandeling, sport of een picknick in het weekend. Qua bereikbaarheid zit je hier uitstekend: Het ligt om de hoek van station Moerwijk en ook met tram en bus ben je binnen 15 minuten in het centrum van Den Haag of op Den Haag Centraal. Ook de uitvalswegen richting de A4, A12 en A13 zijn snel te bereiken, wat deze locatie ideaal maakt voor forenzen.

De woning maakt 1/24e deel uit van een actieve VVE met onderhoudsreserve en een collectieve opstalverzekering.

Indeling:
Afgesloten portiek met bellentableau, entree van het appartement met tochtportaal en ruime hal met  meterkast en opstelplaats wasmachine. 
Ruime lichte woonkamer met prettig veel lichtinval en aansluiten de eetkamer met luxe open keuken met inbouwapparatuur. Vanuit de eetkamer heeft u openslaande deuren naar de grote achtertuin. 
Ruime en gemoderniseerde badkamer met ene ligbad, douche, wastafel en het toilet. Zowel aan de voorzijde als aan de achterzijde ene slaapkamer. De grote slaapkamer aan de achterzijde biedt tevens deuren naar de achtertuin. 

De achtertuin is bijzonder groot en 7 meter breed! Tegen de achtergevel is een overkapping geplaatst waardoor u het gehele jaar door van de tuin kunt genieten. 

Een net appartement waar u niet hoeft te verbouwen!

Bijzonderheden:
- Energielabel D
- Voorzien van dubbel glas.	
- Eigen CV ketel
- WOZ waarde 01-01-2025 € 305.000
- Gelegen op erfpacht, het recht is eeuwigdurend (her)uitgegeven door middel van een obligatoire overeenkomst, ingangsdatum 1-1-2011. De AB 1986 herz. 1993 versie 2008 zijn van toepassing.
De grondwaarde is € 15.400,00 en huidig geldende canonpercentage is 3,3% per 1-1-2026.
De canon bedraagt per halfjaar achteraf € 254,10 + € 17,00 beheerkosten.
De eerstvolgende herziening van het canonpercentage (en de canon) vindt plaats op 1-1-2031.
- 1/24e aandeel in actieve vereniging van eigenaren met een maandelijkse bijdrage van € 101,- 
- Er is collectieve opstalverzekering, onderhoudsplan en ruime reserve voor onderhoud van de VVE.  
- Oplevering in overleg, kan per direct.
- Voor het downloaden van de relevante documenten / voorwaarden / model koopakte en het uitbrengen van een bod ontvangt u een mail met de afspraakbevestiging en een link naar de Eerlijk Bieden / dataroom omgeving op onze website.

Kenmerken