Beschrijving

Royale twee-onder-een kap woning met inpandige garage, grote woonkamer met luxe nieuwe open keuken (2024), 4 ruime slaapkamers, 2 badkamers, zonnige tuin + 2 balkons en een grote vliering (bijna 2 meter hoog) waar extra kamers gemaakt kunnen worden. 
Deze ruime gezinswoning -type drive in- heeft energielabel B, is volledig voorzien van vloerverwarming (vernieuwd in 2024) & dubbel glas en de keuken is vernieuwd in 2024. Een zeer goede basis om eventueel de woning naar eigen wensen af te werken of aan te passen door bijvoorbeeld een dakkapel te plaatsen op de vliering (zie buren) of de garage in te richten als thuiswerkplek. 
De woning bevindt zich op loopafstand van het Damcentrum en de welbekende Sluisjes. Op de fiets bent u in enkele minuten bij station Leidschendam-Voorburg met Metro E naar Den Haag-Rotterdam en de RandstadRail naar Zoetermeer, met de auto bent u in enkele minuten op de A4, A12 en A13. Er zijn volop winkels en gezellige horeca in de buurt, zoals aan de Damlaan/Damplein, de historische Sluisjes, The Mall of the Netherlands of Leidschenveen. Ook basisscholen en middelbare scholen zijn op loop- en fietsafstand en er is parkeergelegenheid voor de deur.

Indeling:
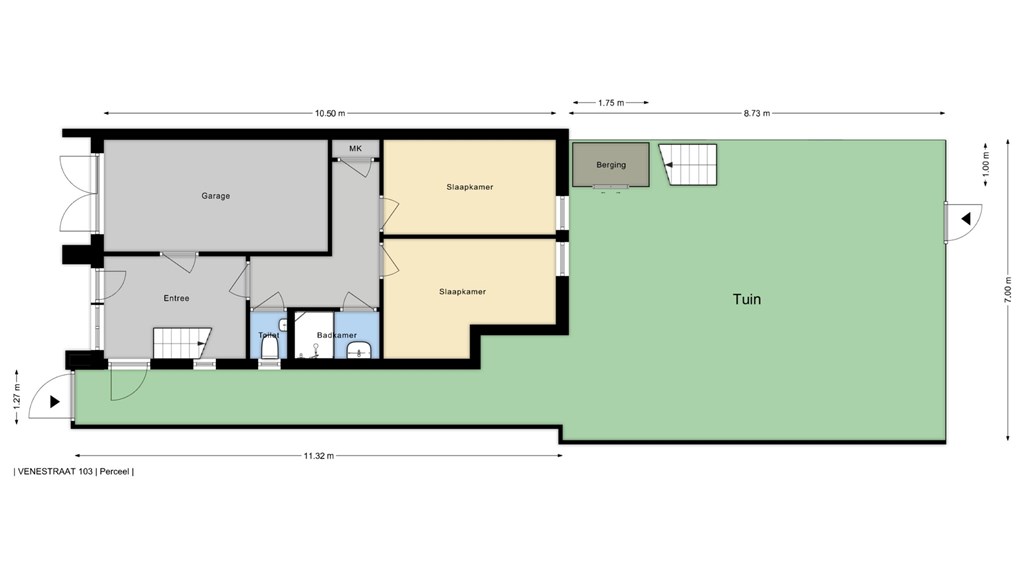
Entree, hal met binnendeur naar de garage, deur naar de tuin en deur naar het achtergedeelte met separaat toilet met fontein, de 1e badkamer met douche en wastafel en 2 ruime slaapkamers. 
De garage is thans in gebruik als gym maar is multifunctioneel, u kunt er een auto stallen maar ook inrichten als kantoor. 
De tuin is toegankelijk vanuit de hal, vanaf het balkon op de 1e verdieping of vanuit de poort cq achterom. De tuin grenst aan de achterzijde aan een groenstrook en is in de zomer al zonnig vanaf 12.00 tot in de avond. 
1e verdieping:
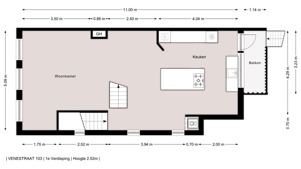
Grote woonkamer met gezellige zithoek aan de voorzijde met een open haard (gas). Aan de achterzijde de royale open woonkeuken met alle benodigde inbouwapparatuur, eiland en veel werkblad. Tevens in de keuken een vaste kast met optie voor opstelplaats wasmachine (kan ook op de 2e verdieping geplaatst worden).
Vanuit de keuken toegang tot het zonnige balkon over de breedte met veel privacy en tevens een trap naar de tuin.  

2e verdieping:
Ruime overloop met vaste kast met opstelplaats CV, toegang tot beide  ruime slaapkamers, de badkamer en middels vlizotrap toegang tot de zeer grote vliering (optie is om een vaste trap te maken). 
Aan de voorzijde de ouderslaapkamer met balkon, aan de achterzijde een ruime slaapkamer en aangrenzend de badkamer met bad, douche, dubbele wastafel, toilet en wasruimte (voorheen sauna) met optie opstelplaats wasmachine. 
Vliering:
Middels de vlizotrap komt u op de vliering over de gehele diepte van de woning, de vliering is bijna 2 meter hoog en thans voorzien van Velux dakraam. De buren hebben hier dakkapellen geplaatst waardoor er extra kamers gemaakt kunnen worden. 

Bijzonderheden:
-	Energielabel B
-	Gelegen op 114 m² eigen grond
-	Keuken en vloerverwarming vernieuwd in 2024.
-	Voor het bestemmingsplan voor gebruik als wonen en/of werken en de regels voor het plaatsen dakkapellen verwijzen wij u naar de informatie in het dossier.
-	Oplevering in overleg.
-	Voor het downloaden van de relevante documenten / voorwaarden / model koopakte en het uitbrengen van een bod ontvangt u een mail met de afspraakbevestiging en een link naar de Eerlijk Bieden / dataroom omgeving op onze website.

Kenmerken