| Prijs | € 515.000,- k.k. |
| Type object | Appartement, bovenwoning, dubbelbovenhuis |
| Woonoppervlakte | 113 m² |
| Aanvaarding | In overleg |
| Status | Verkocht |
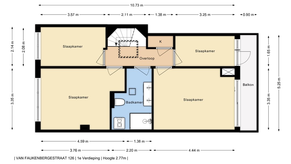
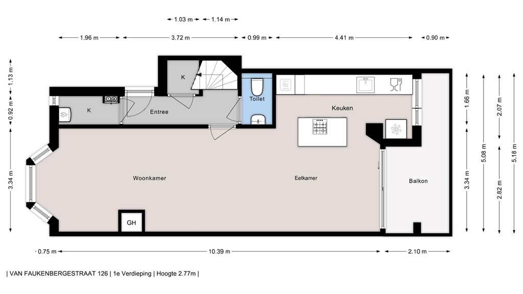
*English text scroll down* Zeer ruime en praktisch ingedeelde 2 laags bovenwoning met 4 slaapkamers, XL woonkamer met open keuken, vergroot terras en energielabel C op een zeer gewilde locatie. De Van Faukenbergestraat biedt een optimale combinatie van rust & groen met een super centrale ligging ten opzichte van snelwegen en op loopafstand van station Laan van NOI. Dit fraaie en goed geïsoleerde appartement van 113 m2 + 13m2 buitenruimte biedt onder andere een ruime en sfeervolle woonkamer met erker, open keuken met eiland en vergroot terras (voorheen balkon), inpandige berging, 4 slaapkamers, grote badkamer met inloopdouche en 2e toilet en er is een 2e balkon. Zowel het platte dak als het pannendak zijn in 2023 resp. 2025 vernieuwd, de kozijnen zijn van kunststof met HR glas en de CV Remeha Calenta CW5 is uit 2020. De woning is gelegen op eigen grond en de VVE is actief. De ligging is bijzonder gunstig in een straat met aan beide zijden parkeergelegenheid en op loop/fietsafstand van Station Laan van NOI, het Koningin Julianaplein en de Theresiastraat met tal van winkels en gezellige horeca. Op de fiets bent u in minder dan 10 minuten in Den Haag Centrum en binnen enkele minuten met de auto op de A12, A4, A13, N44 / A44. Indeling: Pad naar eigen trapopgang en eigen portiek met bordes. Eerste verdieping: Entree appartement, ruime overloop met aan de voorzijde de inpandige berging met opstelplaats CV, in de gang het vergrote en moderne toilet met fontein. Royale woonkamer, voorheen en-suite met aan de voorzijde de gezellige zithoek met erker en schouw mat gashaard. Aan de achterzijde de eetkamer met de royale open woonkeuken met alle benodigde inbouwapparatuur, veel natuurstenen werkblad en kookeiland. Vanuit de woonkamer een schuifpui naar het vergrote balkon cq terras van 8m2. Tweede verdieping: Ruime en lichte overloop met lichtkoepel en vaste kast. Aan de voorzijde 2 slaapkamers met dakkapel. Ruime badkamer met lichtkoepel, grote douche, dubbel wastafelmeubel, 2e toilet en opstelplaats wasmachine/droger. Aan de achterzijde de ouderslaapkamer met schuifpui naar het 2e balkon en een achter zijkamer met eveneens toegang tot het balkon. Vanuit de voorslaapkamer is er een vlizotrap naar de bergvliering. Een keurig, ruim en goed ingedeelde bovenwoning op een toplocatie! Bijzonderheden: • Eigen grond • 2/9e aandeel in actieve en gezonde VVE met een maandelijkse bijdrage € 190,- Er is een recent verlopen MeerJarenOnderhoudsPlan (nieuwe versie moet nog gemaakt worden), er is een collectieve opstalverzekering, VVE is ingeschreven in de KVK en er zijn recente notulen. • Dak recent vernieuwd, 2025 het pannendak en 2023/2025 het platte dak. • Kunststof kozijnen met HR glas en CV Remeha Calenta 2020. • Badkamer vernieuwd in 2020. • Veel bergruimte, ook op de vliering • Energielabel C. • Oplevering in overleg, wens verkoper medio oktober 2025. • Voor het downloaden van de relevante documenten / voorwaarden / model koopakte/clausules en het uitbrengen van een bod ontvangt u een mail met de afspraakbevestiging en een link naar de Eerlijk Bieden / dataroom omgeving op onze website. *** Very spacious and practically laid out 2-storey upper house with 4 bedrooms, XL living room with open kitchen, enlarged terrace and energy label C in a very popular location. The Van Faukenbergestraat offers an optimal combination of peace & greenery with a super central location in relation to highways and within walking distance of Laan van NOI station. This beautiful and well-insulated apartment of 113 m2 + 13 m2 outdoor space offers, among other things, a spacious and attractive living room with bay window, open kitchen with island and enlarged terrace (formerly balcony), indoor storage room, 4 bedrooms, large bathroom with walk-in shower and 2nd toilet and there is a 2nd balcony. Both the flat roof and the tiled roof were renewed in 2023 and 2025 respectively, the frames are made of plastic with HR glass and the CV Remeha Calenta CW5 is from 2020. The house is located on private land and the VVE is active. The location is very favorable in a street with parking on both sides and within walking/cycling distance of Station Laan van NOI, the Koningin Julianaplein and the Theresiastraat with numerous shops and cozy restaurants. By bike you are in The Hague Center in less than 10 minutes and within a few minutes by car on the A12, A4, A13, N44 / A44. Layout: Path to private staircase and private porch with landing. First floor: Apartment entrance, spacious landing with the indoor storage room with CV installation space at the front, in the hallway the enlarged and modern toilet with washbasin. Spacious living room, formerly en-suite with the cozy sitting area with bay window and mantelpiece with gas fireplace at the front. At the rear the dining room with the spacious open kitchen with all necessary built-in appliances, lots of natural stone worktop and cooking island. From the living room a sliding door to the enlarged balcony or terrace of 8m2. Second floor: Spacious and light landing with skylight and built-in closet. At the front 2 bedrooms with dormer window. Spacious bathroom with skylight, large shower, double washbasin, 2nd toilet and washing machine/dryer installation space. At the rear the master bedroom with sliding doors to the 2nd balcony and a rear side room with also access to the balcony. From the front bedroom there is a loft ladder to the storage loft. A neat, spacious and well-arranged upper house in a top location! Details: • Own land • 2/9th share in active and healthy VVE with a monthly contribution of € 190,- There is a recently expired Multi-Year Maintenance Plan (new version still needs to be made), there is a collective building insurance, VVE is registered in the Chamber of Commerce and there are recent minutes. • Roof recently renewed, 2025 the tiled roof and 2023/2025 the flat roof. • Plastic frames with HR glass and CV Remeha Calenta 2020. • Bathroom renewed in 2020. • Lots of storage space, also in the attic • Energy label C. • Delivery in consultation, seller's wish mid-October 2025. • To download the relevant documents / conditions / model purchase agreement / clauses and to make an offer, you will receive an email with the appointment confirmation and a link to the Eerlijk Bieden / data room environment on our website.
| Referentienummer | 72 |
| Vraagprijs | € 515.000,- k.k. |
| Servicekosten | € 190,- |
| Status | Verkocht |
| Aanvaarding | In overleg |
| Aangeboden sinds | Maandag 2 juni 2025 |
| Laatste wijziging | Woensdag 2 juli 2025 |
| Type object | Appartement, bovenwoning, dubbelbovenhuis |
| Woonlaag | 2e woonlaag |
| Soort bouw | Bestaande bouw |
| Bouwperiode | 1934 |
| Dakbedekking | Bitumen Dakpannen |
| Type dak | Samengesteld |
| Isolatievormen | Dakisolatie Dubbel glas HR-glas |
| Woonoppervlakte | 113 m² |
| Inhoud | 387 m³ |
| Oppervlakte gebouwgebonden buitenruimte | 13 m² |
| Aantal bouwlagen | 3 |
| Aantal kamers | 6 (waarvan 4 slaapkamers) |
| Aantal badkamers | 1 (en 1 apart toilet) |
| Ligging | Aan rustige weg Dichtbij openbaar vervoer In centrum In woonwijk Nabij school Nabij snelweg Vrij uitzicht |
| Energielabel | C |
| CV ketel | Remeha Calenta |
| Warmtebron | Gas |
| Bouwjaar | 2020 |
| Combiketel | Ja |
| Eigendom | Eigendom |
| Warm water | CV-ketel |
| Verwarmingssysteem | Centrale verwarming |
| Ventilatie methode | Mechanische ventilatie |
| Badkamervoorzieningen | Inloopdouche Toilet Wasmachineaansluiting Wastafelmeubel |
| Heeft een balkon | Ja |
| Heeft kabel-tv | Ja |
| Telefoonaansluiting aanwezig | Ja |
| Beschikt over een internetverbinding | Ja |
| Heeft een dakraam | Ja |
| Heeft een schuifpui | Ja |
| Heeft ventilatie | Ja |
| Ingeschreven bij de KvK | Ja |
| Jaarlijkse vergadering | Ja |
| Periodieke bijdrage | Ja |
| Reservefonds | Ja |
| Meer jaren onderhoudsplan | Ja |
| Onderhoudsverwachting | Ja |
| Opstal verzekering | Ja |
| Kadastrale aanduiding | Voorburg F 7034 |
| Omvang | Appartementsrecht of complex |
| Eigendomsituatie | Eigen grond |
| Indexnummer | 4 |