| Prijs | € 2.000.000,- k.k. |
| Type object | Woonhuis, villa, vrijstaande woning |
| Perceeloppervlakte | 1.863 m² |
| Woonoppervlakte | 423 m² |
| Aanvaarding | In overleg |
| Status | Verkocht |
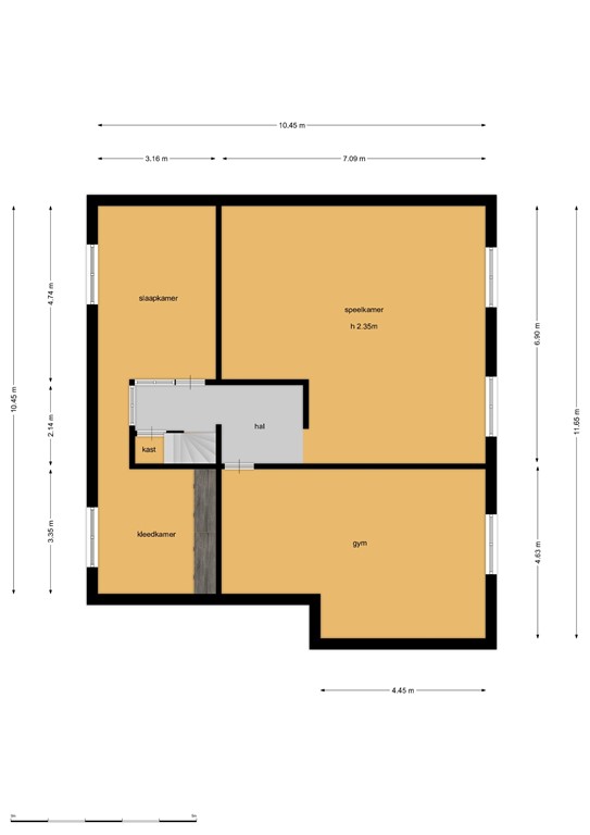
Landelijk en comfortabel wonen nabij Den Haag, Amsterdam en Rotterdam? Deze vrijstaande villa met energielabel A combineert rust en ruimte in een groene omgeving nabij Koninklijk Landgoed De Horsten in Wassenaar. Eikendael 1 is een ruime familie woning met een woonoppervlakte van 423m2 gelegen op een perceel van 1863m2 in Park Beukendael. Deze locatie is heel groen en toch uiterst centraal gelegen ten opzichte van de uitvalswegen naar zowel Amsterdam Schiphol als naar Rotterdam The Hague Airport; tevens in de nabijheid van diverse scholen waaronder The American School in Wassenaar, The British School in Voorschoten en meerdere Europese Scholen in Den Haag. Deze aantrekkelijke en moderne villa met recent gebouwde vrijstaande kantoorruimte / atelier, een garage, carport en veranda met buitenkeuken is in de laatste jaren grondig gemoderniseerd, goed onderhouden en voorzien van vier nieuwe badkamers, 11 zonnepanelen, domotica, airconditioning en camerasystemen. De woonkamer is voorzien van een serre met rondom zicht op de grote tuin en verder zijn er een royale open woonkeuken, 4 badkamers en 7 slaapkamers waarvan 2 nu in gebruik als gym respectievelijk speelkamer. Indeling: Oprit met elektronisch hek, meerdere parkeerplaatsen onder de carport en een vrijstaande garage. Begane grond: Entree woning, hal met garderode, toilet en openslaande deuren naar de woonkamer. Woonkamer met veel lichtinval door de diverse raampartijen en de aangebouwde serre. Thans dient de serre als kantoorruimte, deze kan echter ook dienst doen als eetkamer met fraai zicht op de tuin. Royale woonkeuken met veel werkblad, kastruimte en luxe inbouwapparatuur. Zowel vanuit de keuken als vanuit de achterdeur of de fietsenberging naar de hal met trap naar de kelder en een badkamer voorzien van toilet, wastafel en douche. Kelder: Hal met toegang tot alle drie de kamers. Slaapkamer met kleedkamer, slaapkamer thans in gebruik als gym en 3e slaapkamer thans in gebruik als speelkamer. De hoogte is 2.35 en alle kamers voorzien in natuurlijk licht & lucht middels ramen. 1e verdieping: Centrale overloop, toilet met fontein, 2 slaapkamers en een badkamer met ligbad en dubbele wastafel. Royale masterbedroom met kleedkamer en eigen badkamer met ligbad, douche, toilet, bidet en dubbele wastafel. 2e verdieping: Overloop met toegang tot de 7e slaapkamer met Veluxraam en eigen badkamer met douche, wastafel, toilet en eveneens een Veluxraam. In deze ruimte ook een kast met opstelplaats CV combiketel Nefit CW6 uit 2023. Bijgebouw: In de tuin is in 2022 een zelfstandige kantoorruimte cq. atelier gebouwd, deze is voorzien van extra veel daglicht door het plaatsen van een dakraam. Er is een eigen groepenkast voor de elektra en voorzien van vloerverwarming. Veranda: In de tuin biedt de veranda een groot overdekt terras met buitenkeuken met een professionele pizzaoven en veel werkblad. De veranda is voorzien van 11 zonnepanelen. Bijzonderheden: - Maatvoering is conform NEN-2580 met meetstaat. - Koopakte op basis van NVM/VBO/VastgoedPRO-model. - Energielabel A. - Oplevering in overleg.
| Referentienummer | 86 |
| Vraagprijs | € 2.000.000,- k.k. |
| Status | Verkocht |
| Aanvaarding | In overleg |
| Aangeboden sinds | Vrijdag 26 september 2025 |
| Laatste wijziging | Dinsdag 27 januari 2026 |
| Type object | Woonhuis, villa, vrijstaande woning |
| Soort bouw | Bestaande bouw |
| Bouwperiode | 1999 |
| Keurmerken | Beveiliging Energie prestatie advies |
| Isolatievormen | Volledig geïsoleerd |
| Perceeloppervlakte | 1.863 m² |
| Woonoppervlakte | 423 m² |
| Inhoud | 1.440 m³ |
| Oppervlakte externe bergruimte | 23 m² |
| Aantal bouwlagen | 5 |
| Aantal kamers | 10 (waarvan 8 slaapkamers) |
| Aantal badkamers | 4 (en 2 aparte toiletten) |
| Ligging | Aan rustige weg Beschutte ligging Dichtbij openbaar vervoer In bosrijke omgeving In woonwijk Nabij school Nabij snelweg |
| Type | Tuin rondom |
| Staat | Prachtig aangelegd |
| Energielabel | A |
| CV ketel | Nefit Trendline ii HRC30 CW6 aquapower |
| Warmtebron | Gas |
| Bouwjaar | 2023 |
| Combiketel | Ja |
| Eigendom | Eigendom |
| Aantal parkeerplaatsen | 3 |
| Aantal overdekte parkeerplaatsen | 2 |
| Warm water | CV-ketel |
| Verwarmingssysteem | Centrale verwarming |
| Ventilatie methode | Mechanische ventilatie |
| Badkamervoorzieningen Badkamer 1 | Douche Toilet Wastafel |
| Badkamervoorzieningen Badkamer 2 | Bidet Inloopdouche Ligbad Toilet Wastafelmeubel |
| Badkamervoorzieningen Badkamer 3 | Ligbad Wastafelmeubel |
| Badkamervoorzieningen Badkamer 4 | Inloopdouche Toilet Wastafel |
| Parkeergelegenheid | Carport Vrijstaande stenen garage |
| Heeft airco | Ja |
| Tuin aanwezig | Ja |
| Heeft een garage | Ja |
| Heeft domotica | Ja |
| Beschikt over een internetverbinding | Ja |
| Heeft schuur/berging | Ja |
| Heeft een dakraam | Ja |
| Heeft zonnepanelen | Ja |
| Heeft ventilatie | Ja |
| Kadastrale aanduiding | Wassenaar D 2730 |
| Perceeloppervlakte | 1.863 m² |
| Eigendomsituatie | Eigen grond |