Beschrijving
Recent compleet gerenoveerd, geheel gelijkvloers en ruim 3/4 kamer appartement op de 2e verdieping met lift, berging en parkeergelegenheid op eigen afgesloten terrein.
Dit turnkey appartement is in 2022 geheel onder handen genomen en heringedeeld. De badkamer en de keuken zijn verplaatst waardoor er nu een royale woonkamer met open woonkeuken is, een badkamer met ligbad en douche, twee ruime slaapkamers en een grote inloopkast. De woning heeft zowel aan de voorzijde als aan de achterzijde een ruim balkon en in de onderbouw een ruime berging. Tevens is dit fraaie appartement zowel vanuit de hoofdentree als vanaf de parkeerplaats geheel gelijkvloers te bereiken.
De locatie is zeer goed, rustig en groen maar erg centraal. De omgeving kent een hoog voorzieningenniveau: op loopafstand ligt Mall of The Netherlands, buurt winkels, MCH Antoniushove, alsmede een bus- en tramhalte. Ook zijn diverse basis- en middelbare scholen, zwembad De Fluit, sportverenigingen en de bibliotheek op korte afstand gesitueerd. Via de nabij gelegen Sytwendetunnel is er een goede verbinding met de snelwegen N44, A4, A12 en A13.
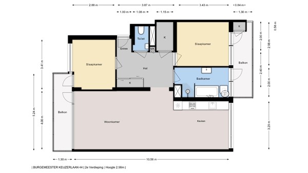
Indeling:
Afgesloten entree met bellentableau of vanaf het afgesloten parkeerterrein aan de achterzijde, lift of trap naar de 2e verdieping.
Entree appartement, ruime centrale hal met meterkast, toilet met fontein, grote inloopkast (voorheen de badkamer) en toegang tot alle vertrekken. Slaapkamer aan de voorzijde met toegang tot het voorbalkon en ruime ouderslaapkamer aan de achterzijde met deur naar het achterbalkon. Grote badkamer (voorheen keuken) met ligbad, douche, wastafel meubel, opstelplaats wasmachine en boiler tbv warm water, tevens vanuit de badkamer toegang tot het achterbalkon.
Royale en lichte woonkamer met aan de voorzijde de gezellige zithoek met toegang tot het balkon. Aan de achterzijde de luxe open woonkeuken met fraai uitzicht.
In de onderbouw een eigen berging.
Bijzonderheden:
- Geheel gerenoveerd in 2022.
- Eigen grond
- Energielabel D
- 4/124e aandeel in actieve VVE bijdrage circa € 248,- per maand.
- Warm water middels eigen boiler en verwarming middels blokverwarming, voorschot stookkosten circa € 90,- per maand
- Oplevering in overleg
- Voor het downloaden van de relevante documenten / voorwaarden / clausules / model koopakte en het uitbrengen van een bod ontvangt u een mail met de afspraakbevestiging en een link naar de Eerlijk Bieden / dataroom omgeving op onze website.