Beschrijving
Geheel gerenoveerd, uitgebouwd en energiezuinig herenhuis op toplocatie aan de brede Koningin Wilhelminalaan, in het geliefde Raadhuiswartier.
Aan een rustige, groene en opvallend brede laan ligt dit extra ruime herenhuis met diepe voor- en achtertuin. Een huis waar in de afgelopen jaren met zorg, smaak en oog voor kwaliteit is gerenoveerd en uitgebouwd. Het resultaat: een comfortabel en toekomstbestendig gezinshuis met 5 slaapkamers, 2 badkamers, 3 toiletten en energielabel A, gelegen op 201 m² eigen grond.
De woning is zeer goed geïsoleerd (HR-glas, spouw-, vloer- en dakisolatie), beschikt deels over een betonnen vloer met vloerverwarming op de begane grond, airconditioning in meerdere slaapkamers en openslaande deuren naar een royale, zonnige achtertuin met grote schuur. Het pannendak is vernieuwd in 2016, zonnepanelen zijn geplaatst in 2022 en het buitenschilderwerk is in 2025 uitgevoerd — zorgeloos wonen dus.
Een recent geplaatste zwart stalen glazen schuifseparatie vormt een stijlvolle en tegelijk praktische scheiding tussen de royale woonkeuken en de sfeervolle zitkamer aan de voorzijde.
De ligging is minstens zo aantrekkelijk als de woning zelf: rustig en groen, maar met alles binnen handbereik. Basisscholen, speeltuinen en het Mariënpark liggen op loopafstand. Voor winkels en horeca wandelt u richting het Damcentrum met de Sluisjes, of juist richting de Mall of the Netherlands. Openbaar vervoer is uitstekend geregeld met verbindingen naar Leiden, Den Haag, Rotterdam en Zoetermeer. Met de auto bent u binnen enkele minuten op de A4, A12 en A13. Parkeren kan gratis voor de deur.
Indeling
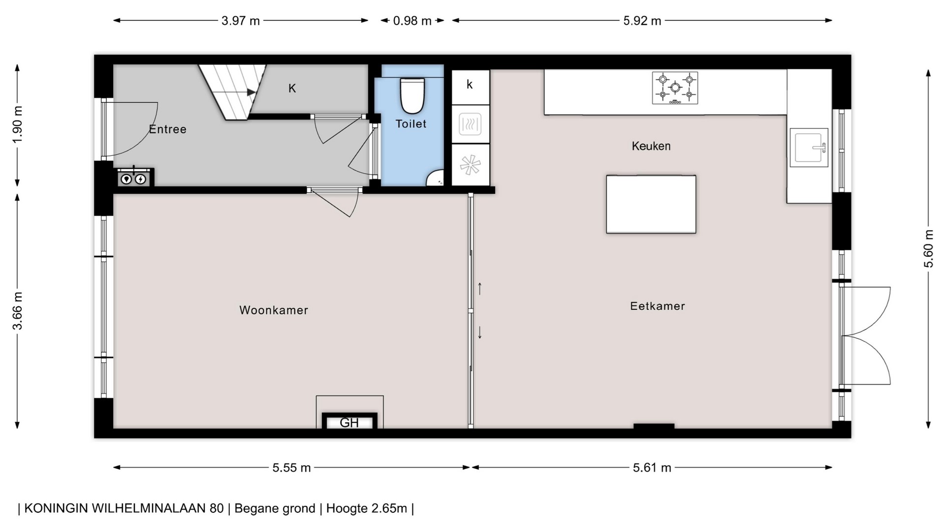
Begane grond
Bijna 7 meter diepe voortuin, entree, bergruimte onder de trap en een vergroot modern toilet met fontein. Aan de voorzijde bevindt zich de gezellige woonkamer met haard (niet houtgestookt) en een fraaie lichtinval, met behoud van privacy dankzij de diepe voortuin.
De open woonkeuken aan de achterzijde is een echte leefruimte: veel natuurstenen werkblad, alle benodigde inbouwapparatuur, extra stopcontacten op logische plekken en een groot dakraam voor prettig daglicht. Er is ruim plaats voor een grote eettafel.
Via de openslaande deuren loopt u zo de circa 15 meter diepe, zonnige achtertuin in, met meerdere terrassen en een ruime schuur van ca. 15 m².
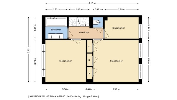
Eerste verdieping
Overloop met separaat tweede toilet. Aan de voorzijde een ruime slaapkamer en de badkamer met ligbad en dubbel wastafelmeubel.
Aan de achterzijde bevindt zich de master bedroom met vaste kasten en airconditioning, naast een derde slaapkamer.
Tweede verdieping
Overloop met separaat derde toilet en vaste kast met opstelplaats voor wasmachine, droger en de CV-combiketel (Remeha Calenta, 2016).
Aan zowel de voor- als achterzijde is een extra grote dakkapel van maximale maat geplaatst, waardoor beide slaapkamers aanzienlijk zijn vergroot en profiteren van veel licht en een comfortabele, volwaardige stahoogte. Tussen deze kamers ligt een tweede badkamer “en suite” met douche en wastafel, toegankelijk vanuit beide slaapkamers. Beide slaapkamers zijn voorzien van airconditioning.
Vliering
Via een vlizotrap bereikbare vliering met extra bergruimte.
Kortom: een royaal, instapklaar en energiezuinig gezinshuis op een van de fijnste plekken van Leidschendam-Voorburg — rustig, groen en toch verrassend centraal.
Bijzonderheden:
- Energielabel A
- Gelegen op 201 m² eigen grond
- Pannendak 2016, dak uitbouw 2013, extern schilderwerk 2025.
- Zonnepanelen 2022 (fabrieksgarantie 25 jaar).
- Dubbel glas HR & HR++, spouwisolatie, vloerisolatie, dakisolatie
- CV Remeha Calenta 2016
- Airconditioning in meerdere slaapkamers
- Er is een asbestvrij rapportage beschikbaar, zie documenten
- Oplevering in overleg, indicatie mei.
- Voor het downloaden van de relevante documenten / voorwaarden / model koopakte en het uitbrengen van een bod ontvangt u een mail met de afspraakbevestiging en een link naar de Eerlijk Bieden / dataroom omgeving op onze website.